Pintu Tahan Api Ketat Gas A60
Merek :XIFAN MARINE
produk asal :Cina
waktu pengiriman :15 hari
kapasitas pasokan :10000pcs/Bulan
Xifan Marine dapat menyediakan semua jenis pintu laut, seperti pintu kedap air, pintu kedap cuaca, pintu api, pintu kedap suara laut, pintu kedap gas, Pintu Berongga Aluminium, pintu baja, Pintu Pelindung EMI, Pintu Geser Ruang Roda dan sebagainya.
Pintu Tahan Api Ketat Gas A60
Pintu Tahan Api Ketat Gas A60 memiliki fungsi proteksi kebakaran dan kedap gas. Produk ini memiliki reputasi produksi kedap gas dan api yang sangat baik. Dibandingkan dengan pintu yang hanya memiliki satu fungsi, pintu tahan api kedap gas A60 ini jauh lebih menguntungkan dan ekonomis. Kami menyediakan semua produk yang memenuhi standar A60, seperti pintu kedap cuaca dan gas A60, pintu baja kedap air A60, pintu baja daun ganda tahan api A60, pintu baja daun tunggal tahan api A60... Jika Anda memiliki persyaratan khusus, kami juga dapat memuaskan Anda.
Fitur
Fungsi ganda, kedap gas dan tahan api
Untuk memenuhi standar A60
Cocok untuk struktur atas di atas geladak atau rumah geladak
Untuk menyesuaikan dalam beberapa derajat
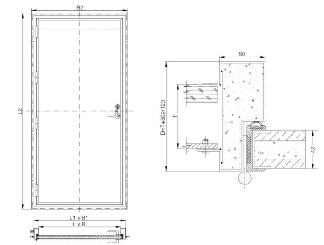
Menggambar:

Spesifikasi:







